SUSSEX TECH

AUTO TECHNOLOGY SHOP

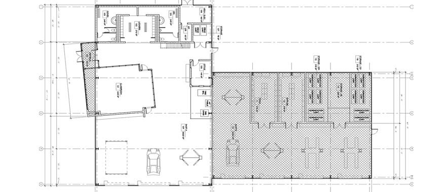
The proposed 5,000 sq ft addition to Sussex Tech’s Auto Tech Shop would not only provide a more functional learning environment, it would also provide students the opportunity to train and work in a professional atmosphere. Exterior aesthetic enhancements include a signature entry piece and a more efficient arrangement of vehicular bays. Interior modification objectives were to create an open, clean, friendly, and well organized space. A 30 student classroom, as well as, toilet rooms, locker rooms, large storage areas, tool and supply room were all included in the program.

Fearn-Clendaniel Architects, Inc.

The proposed 5,000 sq ft addition to Sussex Tech’s Auto Tech Shop would not only provide a more functional learning environment, it would also provide students the opportunity to train and work in a professional atmosphere. Exterior aesthetic enhancements include a signature entry piece and a more efficient arrangement of vehicular bays. Interior modification objectives were to create an open, clean, friendly, and well organized space. A 30 student classroom, as well as, toilet rooms, locker rooms, large storage areas, tool and supply room were all included in the program.
The proposed 5,000 sq ft addition to Sussex Tech’s Auto Tech Shop would not only provide a more functional learning environment, it would also provide students the opportunity to train and work in a professional atmosphere. Exterior aesthetic enhancements include a signature entry piece and a more efficient arrangement of vehicular bays. Interior modification objectives were to create an open, clean, friendly, and well organized space. A 30 student classroom, as well as, toilet rooms, locker rooms, large storage areas, tool and supply room were all included in the program.
The proposed 5,000 sq ft addition to Sussex Tech’s Auto Tech Shop would not only provide a more functional learning environment, it would also provide students the opportunity to train and work in a professional atmosphere. Exterior aesthetic enhancements include a signature entry piece and a more efficient arrangement of vehicular bays. Interior modification objectives were to create an open, clean, friendly, and well organized space. A 30 student classroom, as well as, toilet rooms, locker rooms, large storage areas, tool and supply room were all included in the program.
The proposed 5,000 sq ft addition to Sussex Tech’s Auto Tech Shop would not only provide a more functional learning environment, it would also provide students the opportunity to train and work in a professional atmosphere. Exterior aesthetic enhancements include a signature entry piece and a more efficient arrangement of vehicular bays. Interior modification objectives were to create an open, clean, friendly, and well organized space. A 30 student classroom, as well as, toilet rooms, locker rooms, large storage areas, tool and supply room were all included in the program.
The proposed 5,000 sq ft addition to Sussex Tech’s Auto Tech Shop would not only provide a more functional learning environment, it would also provide students the opportunity to train and work in a professional atmosphere. Exterior aesthetic enhancements include a signature entry piece and a more efficient arrangement of vehicular bays. Interior modification objectives were to create an open, clean, friendly, and well organized space. A 30 student classroom, as well as, toilet rooms, locker rooms, large storage areas, tool and supply room were all included in the program.